Maison en vefa
MARSEILLAN (34340)
Côté Marseillan,
Vente en l’état futur d’achèvement pour cette maison d’habitation construite dans le respect de la norme RE2020, alliant confort moderne, matériaux de qualité et prestations haut de gamme.
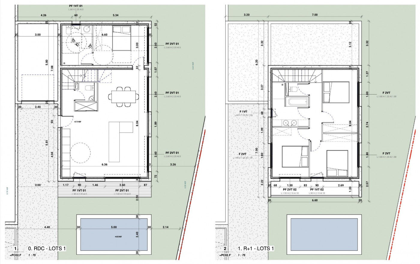
Élevée d’un étage, elle offre une superficie de 112,80 m² habitables sur un terrain clos et arboré de 352,96 m².
Rez-de-chaussée :
• Lumineux salon-séjour ouvrant sur la terrasse et la piscine
• Cuisine équipée moderne et fonctionnelle
• Suite parentale avec dressing, salle d’eau et WC
Étage :
• Trois chambres avec rangements intégrés
• Salle de bains avec WC
Prestations :
• Climatisation réversible dans toutes les pièces
• Carrelage grand format pour un style élégant
• Menuiseries aluminium et bardage bois en façade
• Portail motorisé et garage fermé avec porte motorisée
• Piscine avec terrasse extérieure, idéale pour les beaux jours
• Jardin paysagé avec graviers et végétation
Cette maison allie modernité et confort, prête à accueillir votre famille dans un environnement agréable et sécurisé au cœur de ce lotissement de 5 maisons.
En tout, 5 maisons d’habitation sont à la vente avec des surfaces habitables et de terrains différents. N’hésitez pas à nous contacter pour plus d’informations.
Notre barème d'honoraires
* Honoraires charge vendeur.











