1 local bureau en vente trouvé à villeneuve les beziers (34420)
Créez une alerte e-mail
ventelocal bureau
Ville : Villeneuve lès Béziers
ref. n° 347036185
ref. n° 1688
Local commercial
VILLENEUVE LES BEZIERS
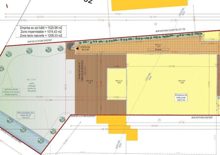
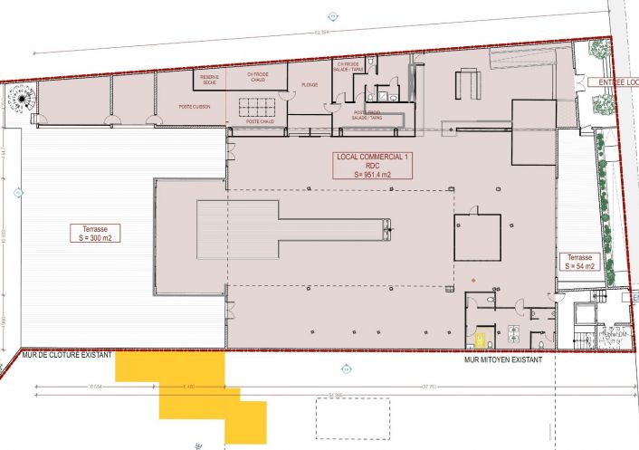
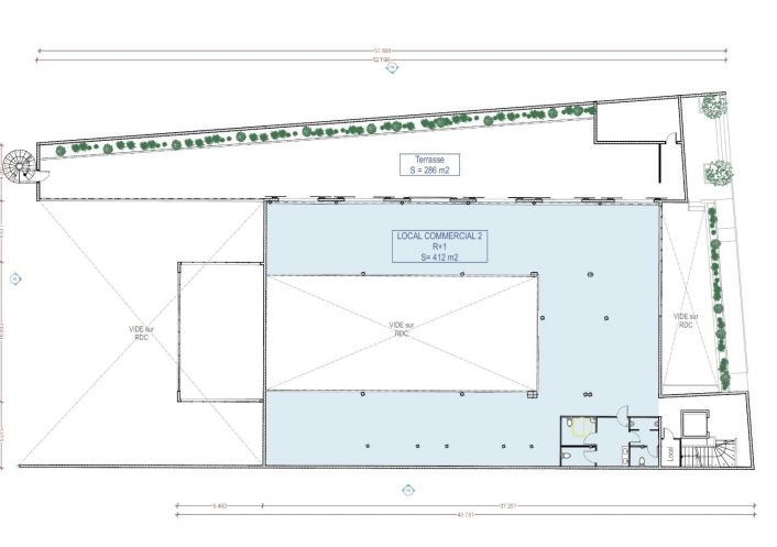
Local commercial de 963 m2 sur un terrain de 2 300 m2
Coté Villeneuve-lès-Béziers,
Venez découvrir cet emplacement avec un fort potentiel.
À ce jour, il s'agit d'un...
Coté Villeneuve-lès-Béziers,
Venez découvrir cet emplacement avec un fort potentiel.
À ce jour, il s'agit d'un...
ou
Envoyer
cette annonce à un ami
cette annonce à un ami
1










